Privato
Ristrutturazione
2025
Privato
Ristrutturazione
2025
Privato
Ristrutturazione
2025
Privato
Ristrutturazione
2025
Privato
Ristrutturazione
2025
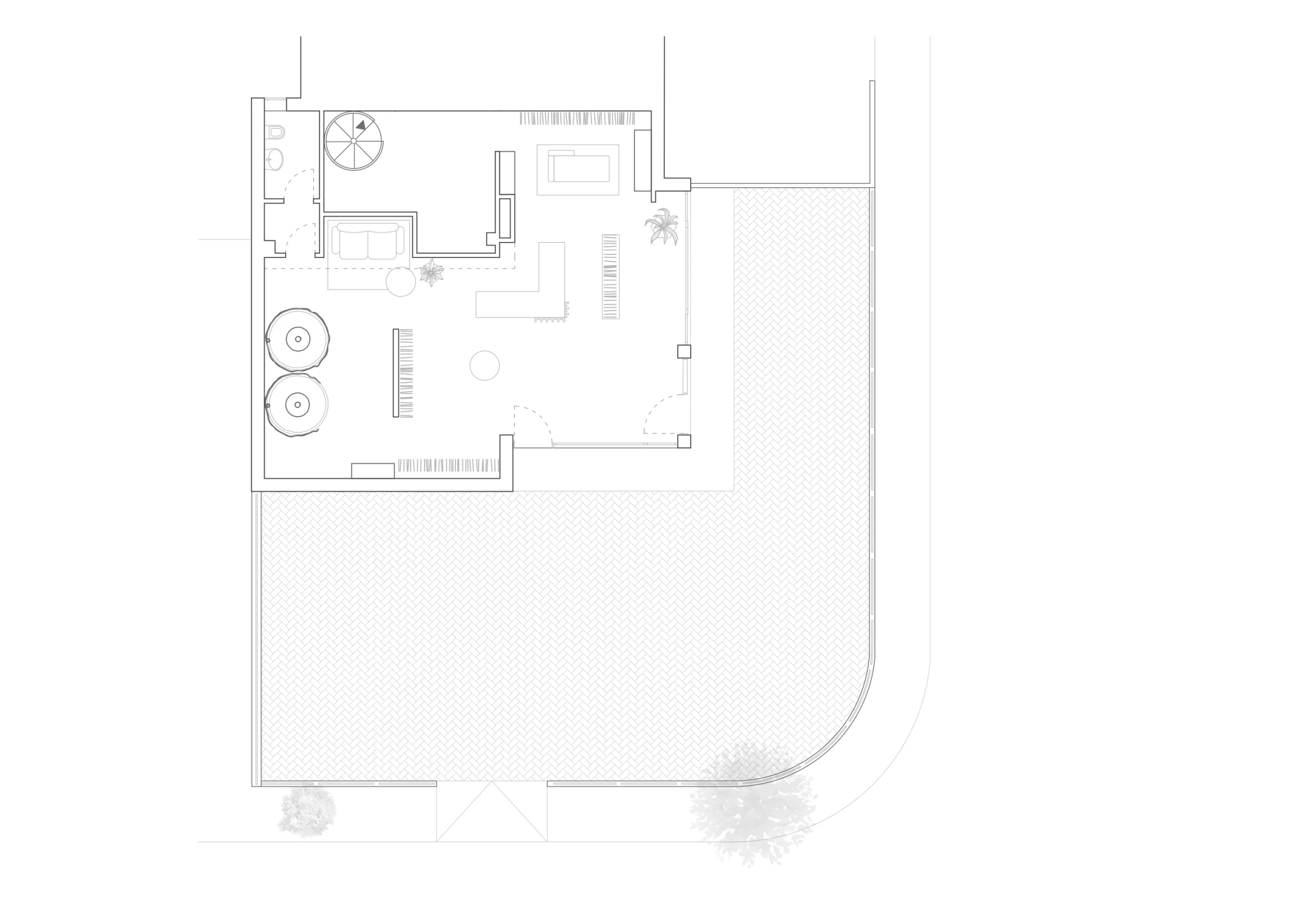
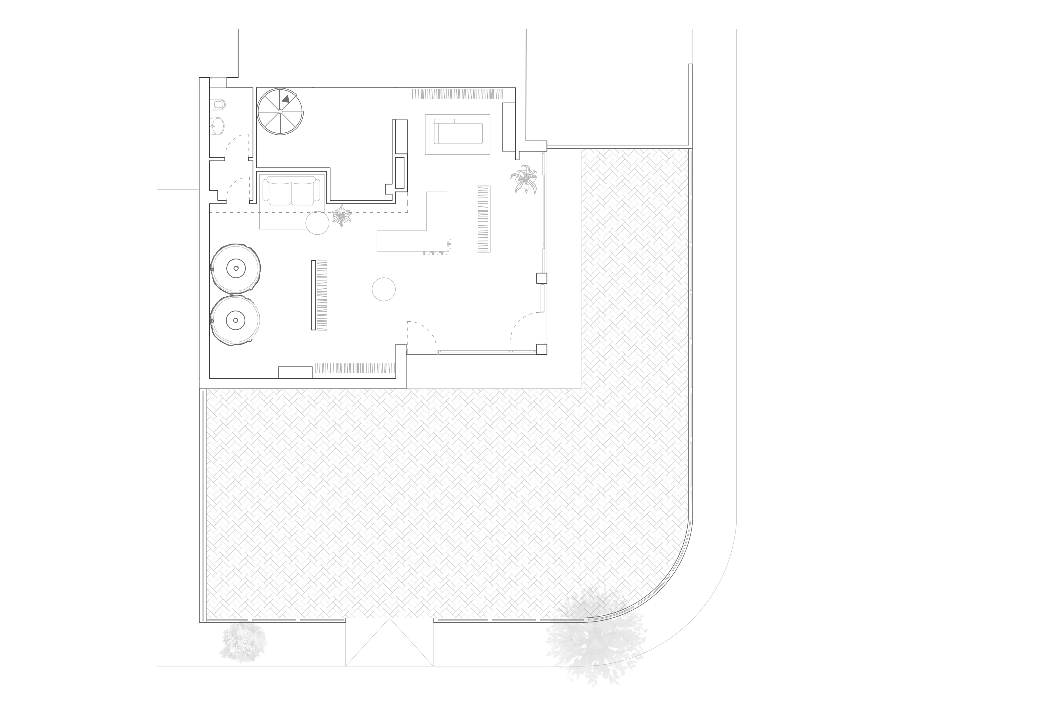
Nel panorama retail di oggi, l’architettura di un negozio non può essere solo esposizione, ma deve farsi "luogo dell'anima". Il progetto per Âme nasce dall'incontro tra la visione sognante di Valentina e la nostra capacità di tradurre un’identità forte in uno spazio fisico. L'obiettivo era chiaro: creare un ambiente signorile ma accogliente, un "mondo rosa" capace di celebrare l’empowerment femminile attraverso un equilibrio perfetto tra eleganza e calore umano. Secondo la nostra visione, lo spazio commerciale è un'interfaccia emozionale
Anno
2025
Tipologia
Ristrutturazione
Cliente
Privato
Abbiamo scelto di giocare sui contrasti cromatici e materici per riflettere la duplice anima della donna Âme. Il soffitto nero moderno, colore dell’eleganza per eccellenza, agisce come una quinta scenica che dà profondità e carattere, contrapponendosi al pavimento a spina di pesce. In questo scrigno, gli stand dorati filiformi si muovono come segni grafici leggeri senza mai appesantire lo sguardo. L'elemento poetico del progetto è rappresentato dai camerini circolari avvolti in tendaggi di velluto rosa
Coerentemente con la filosofia dello Studio, l’intervento è stato gestito con una visione integrata volta a ottimizzare tempi e budget, garantendo una realizzazione sartoriale. Progettare Âme ha significato creare una "casa" prima che un negozio. Abbiamo messo al centro l'ascolto e il valore umano, trasformando un sogno nato in bicicletta in un organismo architettonico vivo, dove ogni dettaglio — dal tocco del velluto alla lucentezza dell'oro — è pensato per far dire "WAOU" a chiunque varchi la soglia
Next project