Privato
Ristrutturazione
2022
Privato
Ristrutturazione
2022
Privato
Ristrutturazione
2022
Privato
Ristrutturazione
2022
Privato
Ristrutturazione
2022
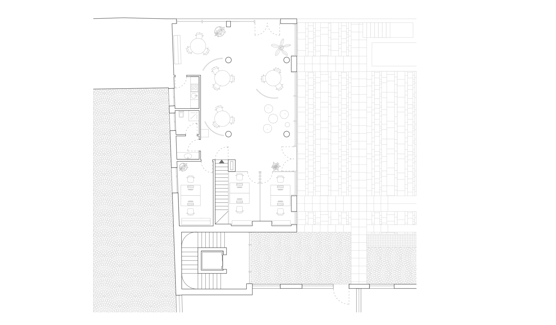
Il progetto ha riguardato il completamento di un’unità commerciale lasciata al grezzo, situata nel centro storico di Villafranca di Verona, trasformata in uno spazio contemporaneo capace di dialogare con il contesto attraverso trasparenza, luce e misura. L’architettura è definita da un volume completamente vetrato sugli affacci principali, concepito per stabilire una relazione diretta tra spazio interno e città. La luce naturale diventa elemento progettuale centrale, capace di attraversare l’intero ambiente e di amplificarne la percezione spaziale, trasformando l’esperienza lavorativa in un luogo aperto, accogliente e rappresentativo
Anno
2022
Tipologia
Ristrutturazione
Cliente
Privato
Gli spazi interni ospitano uffici operativi e postazioni dedicate all’accoglienza dei clienti, organizzati come un ambiente unitario e fluido. La suddivisione funzionale è affidata a partizioni verticali completamente vetrate, che garantiscono continuità visiva, permeabilità luminosa e un equilibrio calibrato tra privacy e condivisione
Il progetto interpreta così il luogo di lavoro come uno spazio di relazione e benessere, dove architettura, funzione e identità si fondono in un ambiente coerente, luminoso e progettato per durare nel tempo. La disposizione degli arredi è stata curata dallo studio di architettura Spazio Progetto, contribuendo alla definizione di un ambiente funzionale e coerente con l’identità architettonica dell’intervento
Next project