Privato
Nuova costruzione
2024
Privato
Nuova costruzione
2024
Privato
Nuova costruzione
2024
Privato
Nuova costruzione
2024
Privato
Nuova costruzione
2024
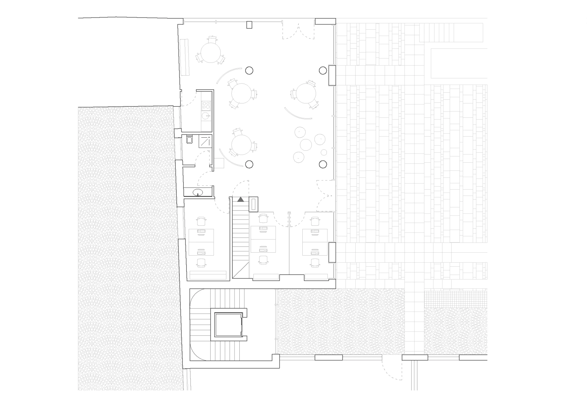
Il progetto per questo centro sportivo d'avanguardia ridefinisce il concetto di struttura ricettiva, dimostrando come la velocità di esecuzione e il rigore del budget possano tradursi in un’architettura di alta qualità funzionale. Il complesso, composto da sei campi da padel, nasce come una sfida vinta tra tecnologia prefabbricata e visione biofilica, dove l’intervento si sviluppa attorno a due grandi tunnel con archi in legno lamellare: una scelta che apporta calore e sostenibilità all’area di gioco
Anno
2024
Tipologia
Nuova costruzione
Cliente
Privato
Coerentemente con la nostra filosofia, l’architettura è stata pensata come uno spazio di incontro totale e privo di barriere, tanto da vantare essere il primo campo nel Veneto pienamente accessibile, garantendo un’esperienza sportiva senza limitazioni. In questo contesto, la funzione incontra la convivialità: la zona bar centrale non è un semplice punto di sosta, ma una moderna "Doma" dove la vita sportiva si intreccia con quella sociale, creando una transizione fluida tra l'attività fisica e il relax
L’attenzione alla sostenibilità, si riflette anche nelle infrastrutture esterne, come l’area parcheggio dotata di pensiline fotovoltaiche che rendono il centro energeticamente efficiente. Il risultato è un impianto sportivo performante, concepito come un organismo funzionale dove ogni elemento prefabbricato trova il suo posto in un disegno armonico