Privato
Nuova costruzione
2023
Privato
Nuova costruzione
2023
Privato
Nuova costruzione
2023
Privato
Nuova costruzione
2023
Privato
Nuova costruzione
2023
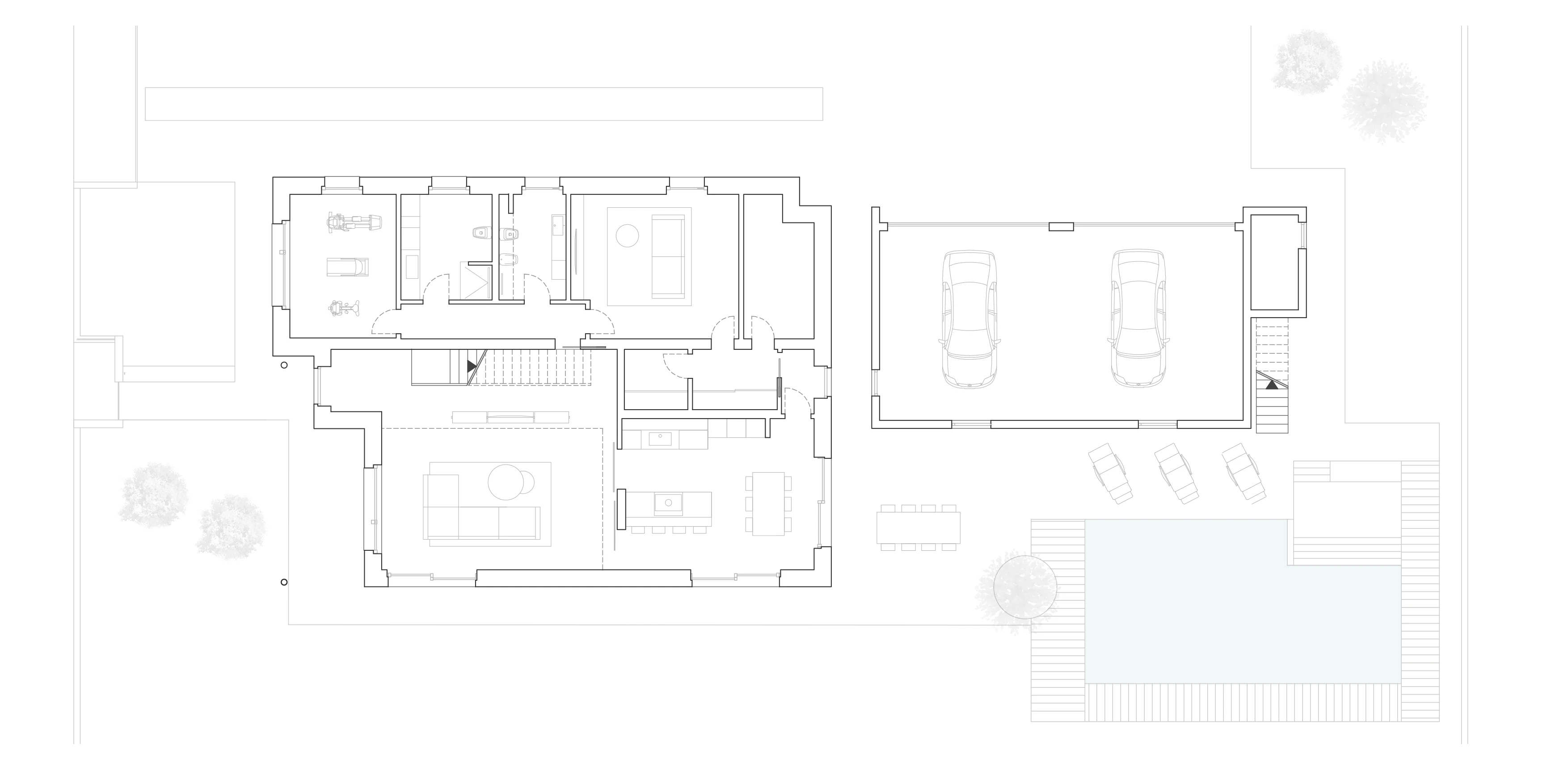
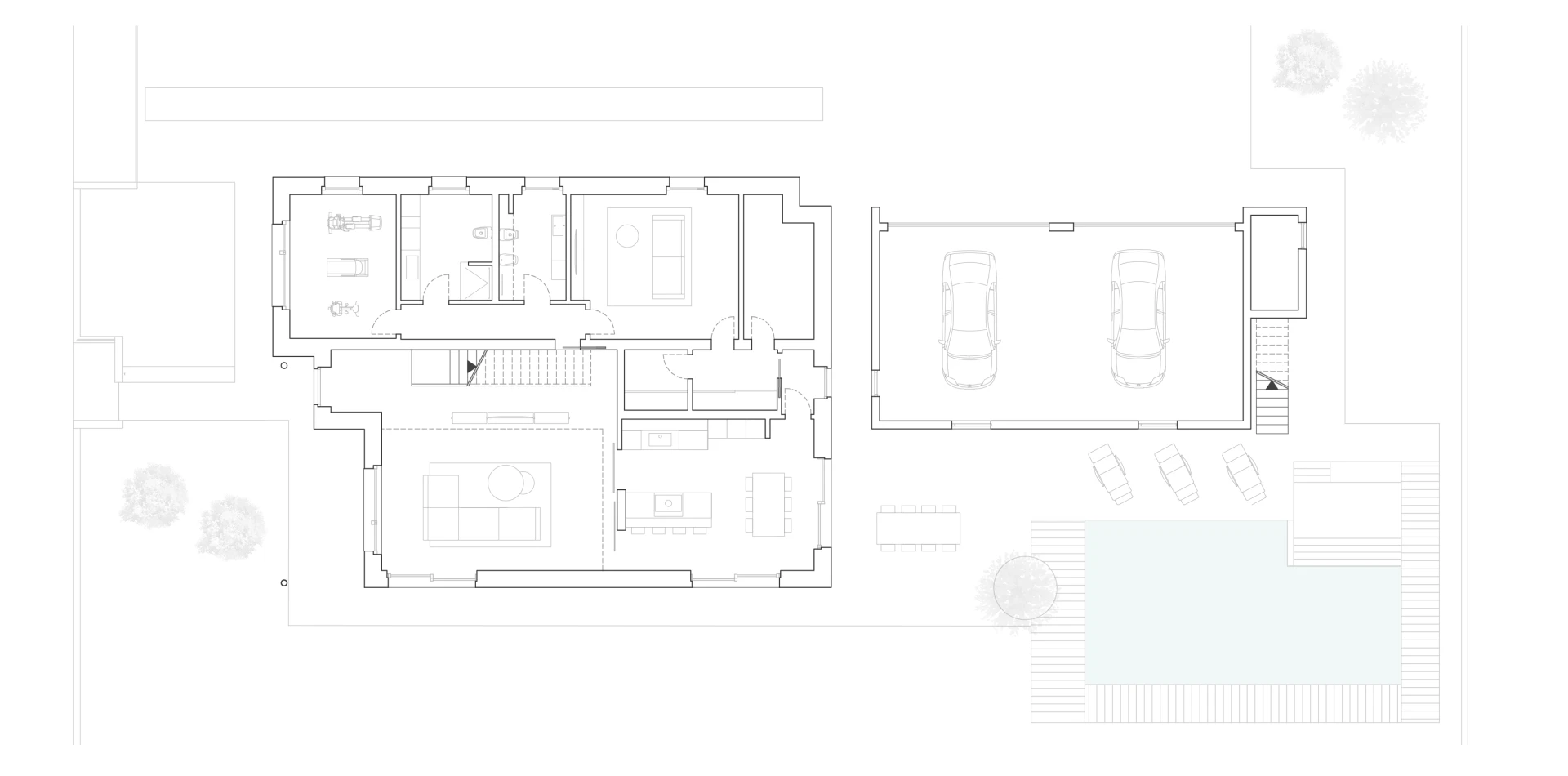
In un nuovo quartiere residenziale l’architettura smette di essere solo costruzione per farsi "soglia", interpretando l’esigenza di una giovane coppia di vivere in un equilibrio perfetto tra privacy e condivisione. L’immobile, orientato strategicamente sull'asse Est-Ovest, si manifesta con una forma compatta a doppia falda: un volume iconico che fa del rigore minimale il suo linguaggio espressivo. Secondo la nostra visione, lo spazio non è un limite ma una transizione
Anno
2023
Tipologia
Nuova costruzione
Cliente
Privato
La facciata principale agisce come uno scudo materico che protegge l’intimità domestica, creando quel confine necessario per trasformare il retro in un’esplosione di vita. Il "cannocchiale" al piano primo rappresenta l'elemento poetico del progetto: non un semplice affaccio, ma un dispositivo visivo che proietta lo sguardo verso l'esterno, dove il confine tra "dentro" e "fuori" svanisce
È in questo dialogo tra vuoto e pieno che si inserisce la nostra competenza tecnica: l'anima Passivhaus dell'edificio opera come una tecnologia invisibile, garantendo un’autosufficienza energetica a consumo zero. Il risultato è un organismo vivo e salubre, dove l’architettura e le prestazioni d’eccellenza si fondono. Questa residenza non è solo una casa funzionale e sicura, ma un rifugio progettato su misura che rispetta il tempo e l’ambiente, offrendo ai suoi abitanti un’esperienza di benessere quotidiano e una bellezza destinata a durare
Next project