Privato
Nuova costruzione
2016
Privato
Nuova costruzione
2016
Privato
Nuova costruzione
2016
Privato
Nuova costruzione
2016
Privato
Nuova costruzione
2016
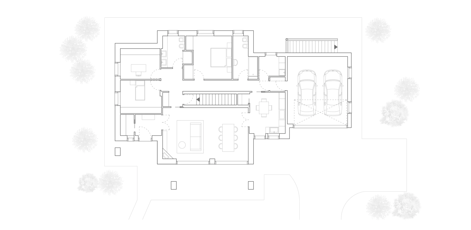
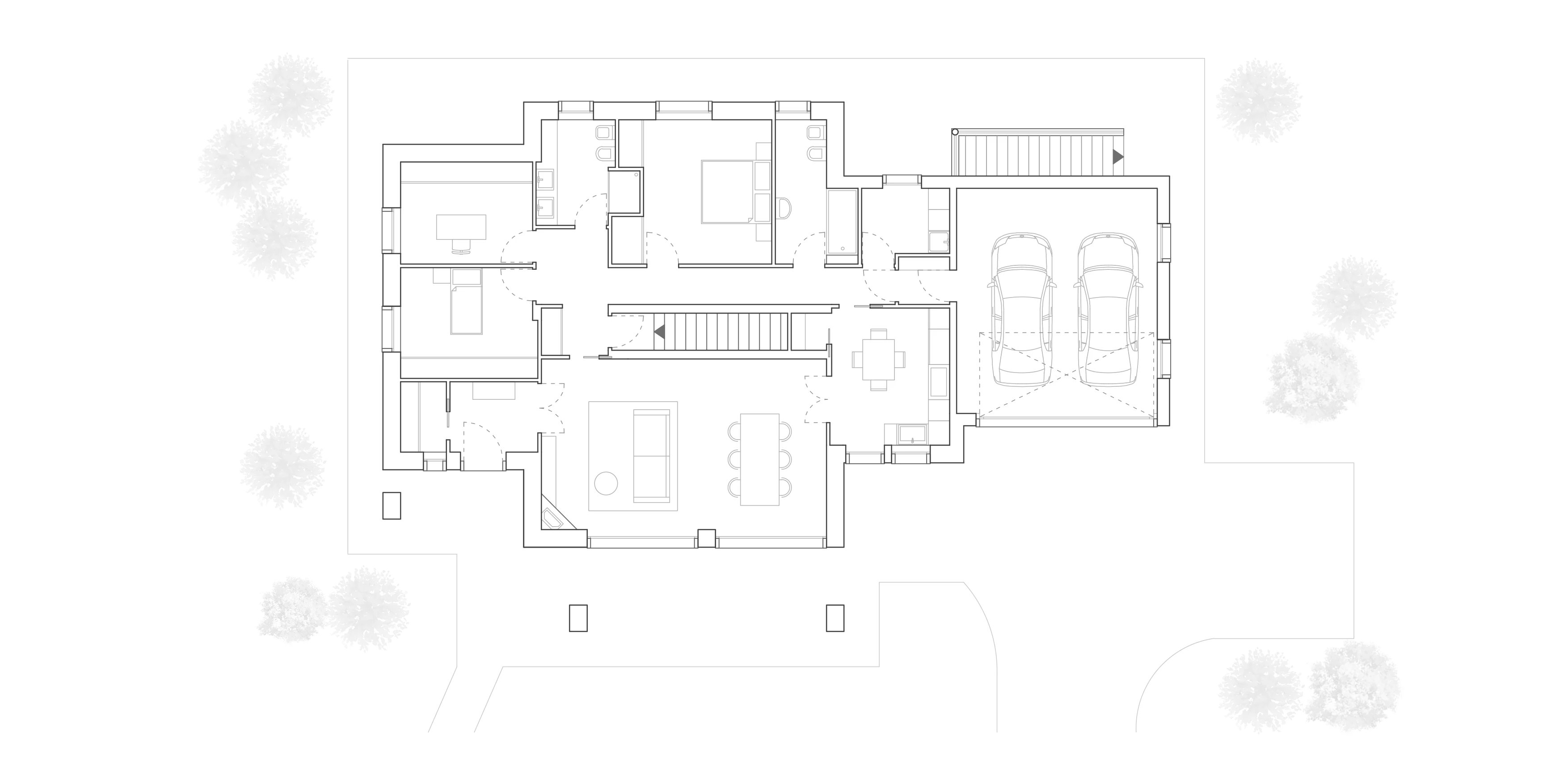
Il progetto riguarda la nuova costruzione di una villa unifamiliare a Mozzecane, in provincia d Verona. L’architettura riprende elementi tipologici consolidati del costruire residenziale, reinterpretandoli attraverso un linguaggio moderno, essenziale e attento alla qualità dello spazio abitato. L’edificio si sviluppa interamente su un unico livello, favorendo una relazione diretta e continua tra interno ed esterno. La distribuzione degli ambienti è chiara e funzionale: un’ampia zona giorno costituisce il cuore della casa, affiancata da una cucina abitabile indipendente, mentre la zona notte ospita due camere da letto e uno studio
Anno
2016
Tipologia
Nuova costruzione
Cliente
Privato
La progettazione ha posto particolare attenzione alla luce naturale. Le aperture sono studiate per garantire luminosità, continuità visiva e una relazione costante con il giardino. Il portico viene concepito come una soglia abitabile che connette lo spazio interno con quello esterno, diventando luogo di relazione, protezione e convivialità
Lo spazio esterno assume un ruolo fondamentale: il giardino è pensato come un vero e proprio ambiente di vita, dedicato al gioco dei bambini, al tempo condiviso e al contatto quotidiano con la natura. Il risultato è un’abitazione che interpreta il vivere contemporaneo con misura e sensibilità, dove funzionalità, qualità spaziale e benessere si fondono in un progetto pensato per crescere insieme a chi lo abita
Next project